$1,100,000
15625 Warm Springs Dr
Canyon Country, CA, 91387
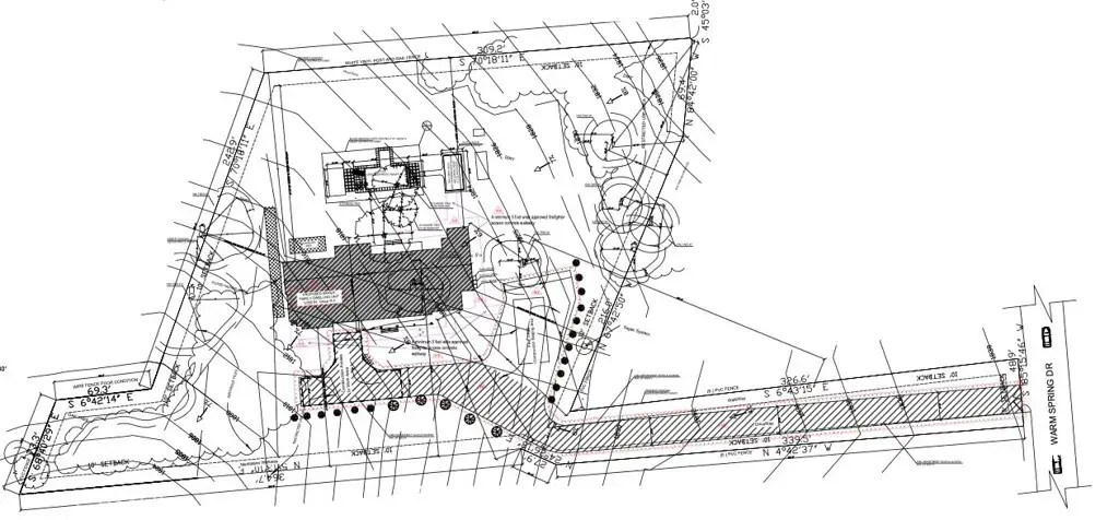
Take advantage of this unique opportunity to fast track your own custom build on a spectacular 2.22 acre lot in Sand Canyon, with FULLY DEVELOPED building plans for a stunning single-story estate. Square footage options range from 5,555 sqft – 5,955 sqft, plus a resort-style backyard, complete with pool and pavilion. The current owner spent multiple years and several hundred thousand dollars to get it to this point, but life has taken a different path, and now you get to reap the benefits! The single story plan can be modified to fit your wishes, and desires, and within a very short amount of time, you’ll be ready to break ground. Most everything else has already been completed. When it comes to building a custom home, the most frustrating, difficult, and time consuming part is working through the planning and permitting stages, and of course paying ALL the fees associated with this. Consider those boxes CHECKED – it’s already done for you! Now you get to jump straight into the fun and exciting part – final floorpan modifications, picking out all your options and materials, and start the building process on your dream home. Whether you’re envisioning a modern retreat or a timeless estate, this is your opportunity to build exactly what you want without the usual long wait. We have great financing options available as well for a land and construction loan to suit your needs, as well as builders ready to build your dream into a reality!
Property Details
Price:
$1,100,000
MLS #:
SR25061270
Status:
Active
Beds:
0
Baths:
0
Type:
Land
Subdivision:
Custom Sand Canyon CSAND
Neighborhood:
sandsandcanyon
Listed Date:
Jan 23, 2026
Lot Size:
95,832 sqft / 2.20 acres (approx)
Schools
Interior
Exterior
Community Features
RS, BLM, FHL, HRS, MTN, GOLF, HIKI, BIKI
Financial
Get Out There, A Simply Outgoing Approach to Life. James Outland Jr. is one of those rare people who simply has an outgoing approach to life. No matter the activity… from dune buggy riding to skydiving to motorcycling to riding the local Pismo Beach waves… James Outland Jr. approaches life with a “just get out there and do it” kind of attitude. A zest for Life. James’ zest for life is obviously apparent in his many exciting hobbies. In his spare time, he loves riding dune buggies or hi…
More About JamesMortgage Calculator
Map
Current real estate data for Land in Canyon Country as of Feb 14, 2026
12
Land Listed
77
Avg DOM
$1,080,567
Avg List Price
Community
- Address15625 Warm Springs Dr Canyon Country CA
- SubdivisionCustom Sand Canyon (CSAND)
- CityCanyon Country
- CountyLos Angeles
- Zip Code91387
Similar Listings Nearby
Property Summary
- Located in the Custom Sand Canyon (CSAND) subdivision, 15625 Warm Springs Dr Canyon Country CA is a Land for sale in Canyon Country, CA, 91387. It is listed for $1,100,000 and features 2 acres. To schedule a showing of MLS#sr25061270 at 15625 Warm Springs Dr in Canyon Country, CA, contact your James Outland agent at 8057482262.
Courtesy of eXp Realty of California Inc. Disclaimer: All data relating to real estate for sale on this page comes from the Broker Reciprocity (BR) of the California Regional Multiple Listing Service. Detailed information about real estate listings held by brokerage firms other than James Outland include the name of the listing broker. Neither the listing company nor James Outland shall be responsible for any typographical errors, misinformation, misprints and shall be held totally harmless. The Broker providing this data believes it to be correct, but advises interested parties to confirm any item before relying on it in a purchase decision. Copyright 2026. California Regional Multiple Listing Service. All rights reserved. 15625 Warm Springs Dr
Canyon Country, CA






















