$749,900
456 E San Jose AV #B
Burbank, CA, 91501
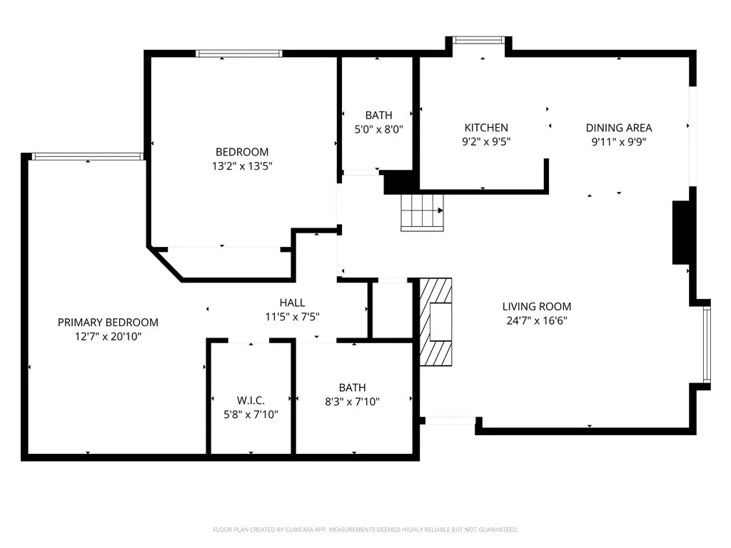
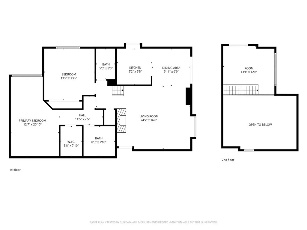
A refined blend of volume, light, and architectural character, this two-bedroom, two-bath residence is defined by soaring vaulted ceilings and a dramatic lofted design that elevates the entire living experience. Natural light pours into the expansive living area, where clean lines and open space create an effortless sense of sophistication and scale. The community’s late-century contemporary architecture shines with clean geometric lines and multi-level design.
The main living space extends seamlessly to a private balcony, offering a tranquil outdoor retreat and enhancing the home’s airy indoor-outdoor flow.
The kitchen is both functional and understated, featuring generous cabinetry, and a breakfast bar that integrates beautifully into the open-concept layout. This is the ideal space for modern living and entertaining!
The primary suite provides a calm and comfortable escape, complete with its own en-suite bath and ample closet space, while the secondary bedroom is equally well-sized and versatile.
Above, a gorgeous loft overlooks the living area, adding architectural depth and serving as a striking flex space, perfect for a curated home office, studio, or elevated lounge.
Thoughtfully designed with an emphasis on space, light, and flow, this residence offers a rare combination of openness and refinement in one of Burbank’s most desirable and centrally located neighborhoods and is an excellent opportunity to own in a centrally located Burbank neighborhood with proximity to major studios and employment hubs.
The main living space extends seamlessly to a private balcony, offering a tranquil outdoor retreat and enhancing the home’s airy indoor-outdoor flow.
The kitchen is both functional and understated, featuring generous cabinetry, and a breakfast bar that integrates beautifully into the open-concept layout. This is the ideal space for modern living and entertaining!
The primary suite provides a calm and comfortable escape, complete with its own en-suite bath and ample closet space, while the secondary bedroom is equally well-sized and versatile.
Above, a gorgeous loft overlooks the living area, adding architectural depth and serving as a striking flex space, perfect for a curated home office, studio, or elevated lounge.
Thoughtfully designed with an emphasis on space, light, and flow, this residence offers a rare combination of openness and refinement in one of Burbank’s most desirable and centrally located neighborhoods and is an excellent opportunity to own in a centrally located Burbank neighborhood with proximity to major studios and employment hubs.
Property Details
Price:
$749,900
MLS #:
GD26062225
Status:
Active
Beds:
2
Baths:
2
Type:
Condo
Subtype:
Condominium
Neighborhood:
610burbank
Listed Date:
Mar 26, 2026
Finished Sq Ft:
1,365
Lot Size:
20,390 sqft / 0.47 acres (approx)
Year Built:
1981
Schools
School District:
Burbank Unified
High School:
Burbank
Interior
Appliances
DW, RF, GR, GS
Bathrooms
2 Full Bathrooms
Cooling
CA
Flooring
LAM
Heating
CF
Interior Features
CF, ST, RECL, GRNC, BL, HCEL
Laundry Features
ICL
Levels
A
Main Level Bathrooms
2
Main Level Bedrooms
2
Exterior
Accessibility Features
DSI
Architectural Style
CNT
Common Walls
_1CW, EU
Community Features
SDW, SL, SUB
Fencing
NO
Garage Spaces
2
Other Structures
SBL
Parking Spots
4
Parking Total
4
Spa Features
NO
View
CI, NE
Window Features
DPW
Financial
HOA Fee
$412
HOA Fee Frequency
MO
Get Out There, A Simply Outgoing Approach to Life. James Outland Jr. is one of those rare people who simply has an outgoing approach to life. No matter the activity… from dune buggy riding to skydiving to motorcycling to riding the local Pismo Beach waves… James Outland Jr. approaches life with a “just get out there and do it” kind of attitude. A zest for Life. James’ zest for life is obviously apparent in his many exciting hobbies. In his spare time, he loves riding dune buggies or hi…
More About JamesMortgage Calculator
Map
Community
- Address456 E San Jose AV #B Burbank CA
- CityBurbank
- CountyLos Angeles
- Zip Code91501
Similar Listings Nearby
Property Summary
- 456 E San Jose AV #B Burbank CA is a Condo for sale in Burbank, CA, 91501. It is listed for $749,900 and features 2 beds, 2 baths, and has approximately 1,365 square feet of living space, and was originally constructed in 1981. The current price per square foot is $549. The average price per square foot for Condo listings in Burbank is $609. The average listing price for Condo in Burbank is $686,996. To schedule a showing of MLS#gd26062225 at 456 E San Jose AV #B in Burbank, CA, contact your James Outland agent at 8057482262.
Courtesy of Maximum Realty & Property Mgn.. Disclaimer: All data relating to real estate for sale on this page comes from the Broker Reciprocity (BR) of the California Regional Multiple Listing Service. Detailed information about real estate listings held by brokerage firms other than James Outland include the name of the listing broker. Neither the listing company nor James Outland shall be responsible for any typographical errors, misinformation, misprints and shall be held totally harmless. The Broker providing this data believes it to be correct, but advises interested parties to confirm any item before relying on it in a purchase decision. Copyright 2026. California Regional Multiple Listing Service. All rights reserved. 456 E San Jose AV #B
Burbank, CA

















































