This single-story storefront building is hitting the market for the first time in over half a century—offering exceptional potential for both owner/users and investors. Excellent opportunity for mixed use space with both living and work areas in one!
With excellent street exposure, ample signage opportunities, and a flexible floor plan, this property is ideal for a wide range of business types seeking maximum visibility in one of Los Angeles County’s most vibrant commercial corridors.
Property Highlights:
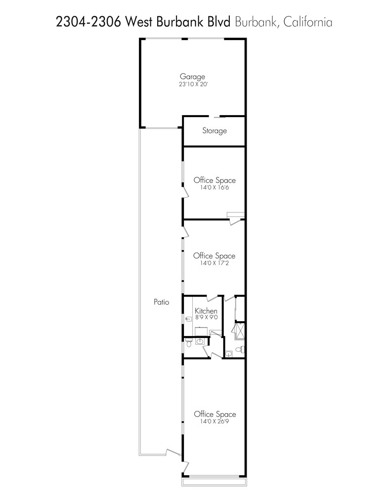
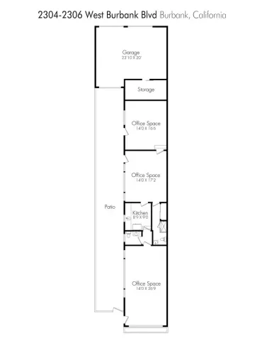
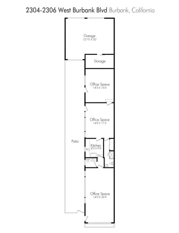
• 3 spacious offices (1,147 square feet)
• Large kitchen
• 2 bathrooms (½ bath & ¾ bath)
• Robust private outdoor patio
• Storage room/Warehouse (504 square feet)
• Oversized 2-car garage with alley access
• Fully fenced property for privacy and security.
Location, Location, Location: Situated near major entertainment and corporate landmarks including Warner Bros. Studios, Universal Studios, The Walt Disney Company, Nickelodeon Studios, and the Burbank Empire Center. Just minutes from Burbank Airport and approximately 12 miles from Downtown Los Angeles, this property provides unbeatable access and convenience.
(Office space: 1,147 square feet, garage/warehouse space: 504 square feet).
Additional Details:
• Permits available upon request
• Building can be delivered vacant at close of escrow.
Don’t miss this exceptional opportunity to secure a prime Burbank address with unbeatable visibility and long-term value potential!
Buyer to do their own due diligence to satisfy themselves of the property condition, zoning, and uses.
Property Details
Schools
Interior
Exterior
Financial
Get Out There, A Simply Outgoing Approach to Life. James Outland Jr. is one of those rare people who simply has an outgoing approach to life. No matter the activity… from dune buggy riding to skydiving to motorcycling to riding the local Pismo Beach waves… James Outland Jr. approaches life with a “just get out there and do it” kind of attitude. A zest for Life. James’ zest for life is obviously apparent in his many exciting hobbies. In his spare time, he loves riding dune buggies or hi…
More About JamesMortgage Calculator
Map
Community
- Address2306 W Burbank BL Burbank CA
- CityBurbank
- CountyLos Angeles
- Zip Code91506
Similar Listings Nearby
Property Summary
- 2306 W Burbank BL Burbank CA is a Commercial for sale in Burbank, CA, 91506. It is listed for $1,100,000 To schedule a showing of MLS#gd25258325 at 2306 W Burbank BL in Burbank, CA, contact your James Outland agent at 8057482262.
Courtesy of Keller Williams R. E. Services. Disclaimer: All data relating to real estate for sale on this page comes from the Broker Reciprocity (BR) of the California Regional Multiple Listing Service. Detailed information about real estate listings held by brokerage firms other than James Outland include the name of the listing broker. Neither the listing company nor James Outland shall be responsible for any typographical errors, misinformation, misprints and shall be held totally harmless. The Broker providing this data believes it to be correct, but advises interested parties to confirm any item before relying on it in a purchase decision. Copyright 2026. California Regional Multiple Listing Service. All rights reserved. This single-story storefront building is hitting the market for the first time in over half a century—offering exceptional potential for both owner/users and investors. Excellent opportunity for mixed use space with both living and work areas in one!
With excellent street exposure, ample signage opportunities, and a flexible floor plan, this property is ideal for a wide range of business types seeking maximum visibility in one of Los Angeles County’s most vibrant commercial corridors.
Property Highlights:
• 3 spacious offices (1,147 square feet)
• Large kitchen
• 2 bathrooms (½ bath & ¾ bath)
• Robust private outdoor patio
• Storage room/Warehouse (504 square feet)
• Oversized 2-car garage with alley access
• Fully fenced property for privacy and security.
Location, Location, Location: Situated near major entertainment and corporate landmarks including Warner Bros. Studios, Universal Studios, The Walt Disney Company, Nickelodeon Studios, and the Burbank Empire Center. Just minutes from Burbank Airport and approximately 12 miles from Downtown Los Angeles, this property provides unbeatable access and convenience.
(Office space: 1,147 square feet, garage/warehouse space: 504 square feet).
Additional Details:
• Permits available upon request
• Building can be delivered vacant at close of escrow.
Don’t miss this exceptional opportunity to secure a prime Burbank address with unbeatable visibility and long-term value potential!
Buyer to do their own due diligence to satisfy themselves of the property condition, zoning, and uses.
Property Details
Schools
Interior
Exterior
Financial
Get Out There, A Simply Outgoing Approach to Life. James Outland Jr. is one of those rare people who simply has an outgoing approach to life. No matter the activity… from dune buggy riding to skydiving to motorcycling to riding the local Pismo Beach waves… James Outland Jr. approaches life with a “just get out there and do it” kind of attitude. A zest for Life. James’ zest for life is obviously apparent in his many exciting hobbies. In his spare time, he loves riding dune buggies or hi…
More About JamesMortgage Calculator
Map
Community
- Address2306 W Burbank BL Burbank CA
- CityBurbank
- CountyLos Angeles
- Zip Code91506
Similar Listings Nearby
Property Summary
- 2306 W Burbank BL Burbank CA is a Single Family for sale in Burbank, CA, 91506. It is listed for $1,100,000 and features 0 beds, 0 baths, and has approximately 0 square feet of living space, and was originally constructed in 1949. The average price per square foot for Single Family listings in Burbank is $487. The average listing price for Single Family in Burbank is $2,944,417. To schedule a showing of MLS#gd26001075 at 2306 W Burbank BL in Burbank, CA, contact your James Outland agent at 8057482262.

































































































