$1,150,000
11509 Haydock CT
Bakersfield, CA, 93311
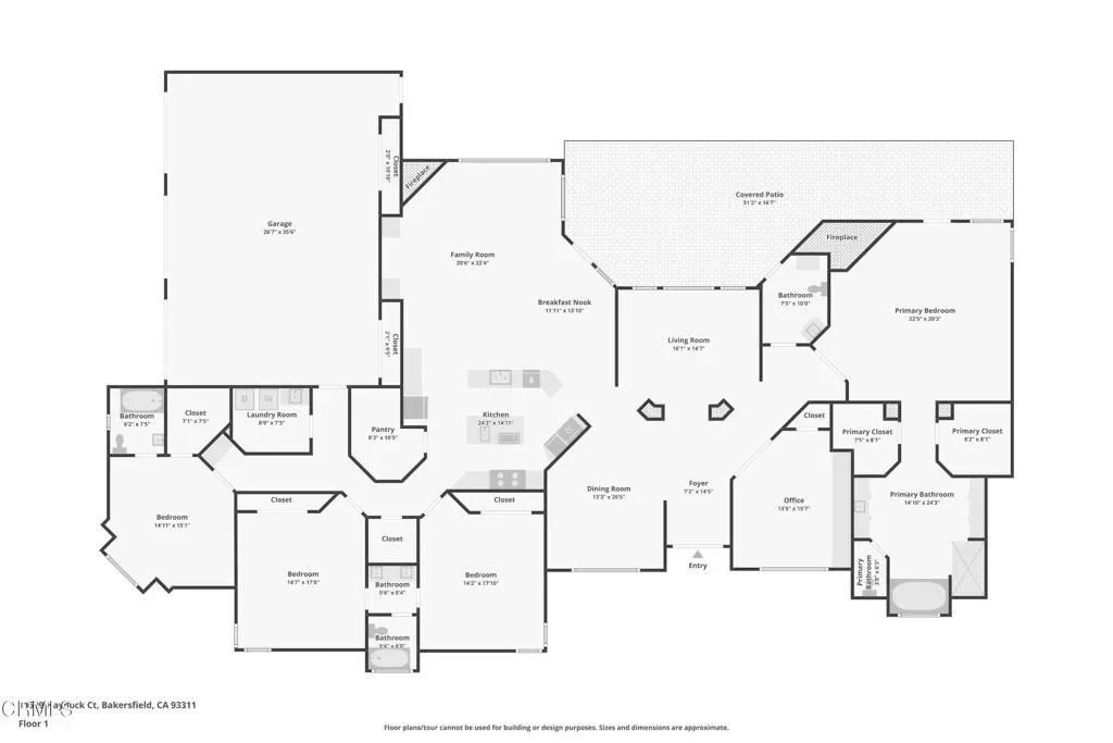
Custom Built by Gold Crest Construction in Grand Island, built in 2002. One Owner home on a 17,424 corner lot.The Floor Plan: Leaded double front doors, Entry opens to the Dining with beautiful windows, Formal Living with view of the rear yard with mature landscaping, Double French Doors grace the built-in Office with beautiful windows. Island Kitchen with large breakfast bar and breakfast area adjacent Family Room with fireplace, vaulted boxed beam ceiling, French doors to the patio and rear yard. Walk in utility room w/sink and loads of storage. Split wing bedrooms: Primary bedroom suit with fireplace, ensuite bath with oval tub, separate shower, double sinks and two walk-in closets, 2 additional bedrooms with shared bathroom. and 1 bedroom with ensuite bath. Attached oversized 3 car garage with attic storage, double gates on side yard and expanded tie-in patio.
Property Details
Price:
$1,150,000
MLS #:
P1-25705
Status:
Active
Beds:
4
Baths:
4
Type:
Single Family
Subtype:
Single Family Residence
Neighborhood:
bksfbakersfield
Listed Date:
Feb 3, 2026
Finished Sq Ft:
3,841
Lot Size:
17,424 sqft / 0.40 acres (approx)
Year Built:
2002
Schools
Elementary School:
Ronald Reagan
High School:
Unknown
Interior
Appliances
DW, MW, GS, BIR, _6BS, DO, SCO, VEF, WHU
Bathrooms
3 Full Bathrooms, 1 Half Bathroom
Cooling
CA
Heating
CF
Interior Features
CF, CRWN
Laundry Features
IN, WH
Levels
A
Exterior
Attached Garage YN
1
Common Walls
NCW
Community Features
SL, PARK
Garage Spaces
3
Parking Spots
3
Parking Total
3
Spa Features
NO
View
NO
Financial
HOA Fee
$139
HOA Fee Frequency
MO
Get Out There, A Simply Outgoing Approach to Life. James Outland Jr. is one of those rare people who simply has an outgoing approach to life. No matter the activity… from dune buggy riding to skydiving to motorcycling to riding the local Pismo Beach waves… James Outland Jr. approaches life with a “just get out there and do it” kind of attitude. A zest for Life. James’ zest for life is obviously apparent in his many exciting hobbies. In his spare time, he loves riding dune buggies or hi…
More About JamesMortgage Calculator
Map
Current real estate data for Single Family in Bakersfield as of Apr 03, 2026
387
Single Family Listed
94
Avg DOM
232
Avg $ / SqFt
$489,382
Avg List Price
Community
- Address11509 Haydock CT Bakersfield CA
- CityBakersfield
- CountyKern
- Zip Code93311
Similar Listings Nearby
Property Summary
- 11509 Haydock CT Bakersfield CA is a Single Family for sale in Bakersfield, CA, 93311. It is listed for $1,150,000 and features 4 beds, 4 baths, and has approximately 3,841 square feet of living space, and was originally constructed in 2002. The current price per square foot is $299. The average price per square foot for Single Family listings in Bakersfield is $232. The average listing price for Single Family in Bakersfield is $489,382. To schedule a showing of MLS#p1-25705 at 11509 Haydock CT in Bakersfield, CA, contact your James Outland agent at 8057482262.
Courtesy of Walters and Associates Inc. Disclaimer: All data relating to real estate for sale on this page comes from the Broker Reciprocity (BR) of the California Regional Multiple Listing Service. Detailed information about real estate listings held by brokerage firms other than James Outland include the name of the listing broker. Neither the listing company nor James Outland shall be responsible for any typographical errors, misinformation, misprints and shall be held totally harmless. The Broker providing this data believes it to be correct, but advises interested parties to confirm any item before relying on it in a purchase decision. Copyright 2026. California Regional Multiple Listing Service. All rights reserved. 11509 Haydock CT
Bakersfield, CA


















































