$829,999
13428 Mohawk RD
Apple Valley, CA, 92308
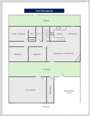
Rent raised 12/1/2025. BEST RENT PER SQ FT – LARGEST RENTABLE AREA PER UNIT – LARGEST GARAGE SPACES PER UNIT…INDOOR LAUNDRY ROOM…..FRONT & BACK YARDS ….Please see Floor Plan in Photos -One of its kind. All units are the same in size & amenities! Each unit is like a regular home complemented with a fireplace; climate control; an indoor laundry room, front & back yards; plenty of parking spaces – double garage & 1 open parking. A unique feature is the store room attached to the garage. The building was laid out to provide maximum privacy for each unit. PLease see building layout in the “Photo” section. It’s income is one of the highest in community the besting many 4 unit apartments. Please note: HVAC units in units B & C replaced last year as well as the ducting; Unit C main breaker panel replaced last years. PLEASE SEE SUPPLEMENT
Property Details
Price:
$829,999
MLS #:
CV25112625
Status:
Active
Beds:
0
Baths:
0
Type:
Single Family
Subtype:
Triplex
Neighborhood:
appvapplevalley
Listed Date:
Feb 11, 2026
Total Sq Ft:
4,200
Lot Size:
21,000 sqft / 0.48 acres (approx)
Year Built:
1989
Schools
Interior
Cooling
CA
Heating
CF
Laundry Features
IR
Exterior
Community Features
SUB
Parking Spots
9
Financial
Maintenance Fee
$600
Get Out There, A Simply Outgoing Approach to Life. James Outland Jr. is one of those rare people who simply has an outgoing approach to life. No matter the activity… from dune buggy riding to skydiving to motorcycling to riding the local Pismo Beach waves… James Outland Jr. approaches life with a “just get out there and do it” kind of attitude. A zest for Life. James’ zest for life is obviously apparent in his many exciting hobbies. In his spare time, he loves riding dune buggies or hi…
More About JamesMortgage Calculator
Map
Current real estate data for Single Family in Apple Valley as of Feb 14, 2026
464
Single Family Listed
71
Avg DOM
222
Avg $ / SqFt
$417,193
Avg List Price
Community
- Address13428 Mohawk RD Apple Valley CA
- CityApple Valley
- CountySan Bernardino
- Zip Code92308
Similar Listings Nearby
Property Summary
- 13428 Mohawk RD Apple Valley CA is a Single Family for sale in Apple Valley, CA, 92308. It is listed for $829,999 and features 0 beds, 0 baths, and has approximately 0 square feet of living space, and was originally constructed in 1989. The average price per square foot for Single Family listings in Apple Valley is $222. The average listing price for Single Family in Apple Valley is $417,193. To schedule a showing of MLS#cv25112625 at 13428 Mohawk RD in Apple Valley, CA, contact your James Outland agent at 8057482262.
Courtesy of MEDALLION REALTORS. Disclaimer: All data relating to real estate for sale on this page comes from the Broker Reciprocity (BR) of the California Regional Multiple Listing Service. Detailed information about real estate listings held by brokerage firms other than James Outland include the name of the listing broker. Neither the listing company nor James Outland shall be responsible for any typographical errors, misinformation, misprints and shall be held totally harmless. The Broker providing this data believes it to be correct, but advises interested parties to confirm any item before relying on it in a purchase decision. Copyright 2026. California Regional Multiple Listing Service. All rights reserved. 13428 Mohawk RD
Apple Valley, CA








