$875,000
209 N Dahlia DR
Anaheim, CA, 92801
209 N Dahlia Dr offers a rare opportunity to step into a thoughtfully planned project where approximately seven months of design, engineering, and permitting have already been completed by the seller.
Approved plans and active permits are in place to transform the main residence into a 3 bedroom and 2 bathroom home with a dedicated laundry room. The home has been taken down to framing, creating a clean slate for the next phase of construction. Underground sewer, water, and gas work has been completed, inspected and signed off by the city at the rough stage.
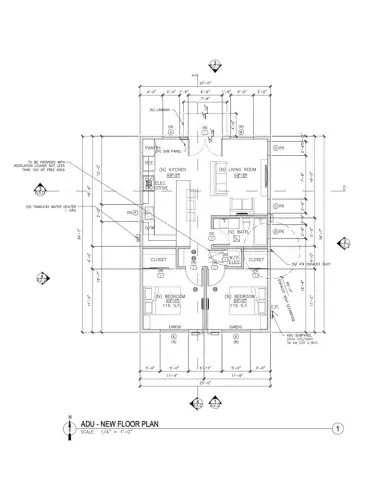
The plans also include a detached ADU, approximately 795 sq ft, designed as a 2 bedroom, 1 bathroom unit. The ADU plans are fully approved by the City of Anaheim and the foundation is prepped and ready for concrete pour.
This property allows a buyer to take over at a stage where the vision is approved, the groundwork is underway, and the remaining construction can be completed to their own preferences and timeline.
Buyer to verify all plans, permits, square footage, and construction status with the City of Anaheim.
Approved plans and active permits are in place to transform the main residence into a 3 bedroom and 2 bathroom home with a dedicated laundry room. The home has been taken down to framing, creating a clean slate for the next phase of construction. Underground sewer, water, and gas work has been completed, inspected and signed off by the city at the rough stage.
The plans also include a detached ADU, approximately 795 sq ft, designed as a 2 bedroom, 1 bathroom unit. The ADU plans are fully approved by the City of Anaheim and the foundation is prepped and ready for concrete pour.
This property allows a buyer to take over at a stage where the vision is approved, the groundwork is underway, and the remaining construction can be completed to their own preferences and timeline.
Buyer to verify all plans, permits, square footage, and construction status with the City of Anaheim.
Property Details
Price:
$875,000
MLS #:
NP26012991
Status:
Active Under Contract
Beds:
3
Baths:
1
Type:
Single Family
Subtype:
Single Family Residence
Neighborhood:
79anaheimwestofharbor
Listed Date:
Jan 23, 2026
Finished Sq Ft:
998
Lot Size:
7,222 sqft / 0.17 acres (approx)
Year Built:
1953
Schools
School District:
Anaheim Union High
Interior
Bathrooms
1 Full Bathroom
Cooling
NO
Laundry Features
IN
Exterior
Community Features
CRB
Parking Spots
2
Financial
Get Out There, A Simply Outgoing Approach to Life. James Outland Jr. is one of those rare people who simply has an outgoing approach to life. No matter the activity… from dune buggy riding to skydiving to motorcycling to riding the local Pismo Beach waves… James Outland Jr. approaches life with a “just get out there and do it” kind of attitude. A zest for Life. James’ zest for life is obviously apparent in his many exciting hobbies. In his spare time, he loves riding dune buggies or hi…
More About JamesMortgage Calculator
Map
Current real estate data for Single Family in Anaheim as of Feb 14, 2026
302
Single Family Listed
58
Avg DOM
340
Avg $ / SqFt
$806,315
Avg List Price
Community
- Address209 N Dahlia DR Anaheim CA
- SubdivisionOther (OTHR)
- CityAnaheim
- CountyOrange
- Zip Code92801
Similar Listings Nearby
Property Summary
- Located in the Other (OTHR) subdivision, 209 N Dahlia DR Anaheim CA is a Single Family for sale in Anaheim, CA, 92801. It is listed for $875,000 and features 3 beds, 1 baths, and has approximately 998 square feet of living space, and was originally constructed in 1953. The current price per square foot is $877. The average price per square foot for Single Family listings in Anaheim is $340. The average listing price for Single Family in Anaheim is $806,315. To schedule a showing of MLS#np26012991 at 209 N Dahlia DR in Anaheim, CA, contact your James Outland agent at 8057482262.
Courtesy of Compass. Disclaimer: All data relating to real estate for sale on this page comes from the Broker Reciprocity (BR) of the California Regional Multiple Listing Service. Detailed information about real estate listings held by brokerage firms other than James Outland include the name of the listing broker. Neither the listing company nor James Outland shall be responsible for any typographical errors, misinformation, misprints and shall be held totally harmless. The Broker providing this data believes it to be correct, but advises interested parties to confirm any item before relying on it in a purchase decision. Copyright 2026. California Regional Multiple Listing Service. All rights reserved. 209 N Dahlia DR
Anaheim, CA
















