$825,000
169 Sandcastle
Aliso Viejo, CA, 92656
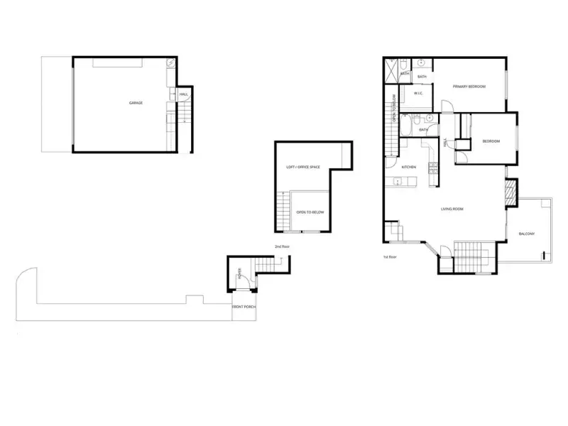
Turnkey 3-bedroom, 2-bath condo located in the highly desirable Villas South community of Aliso Viejo. Privately positioned within the neighborhood, this light-filled home showcases soaring vaulted ceilings enhanced by abundant natural light from expansive windows and a sliding glass door. The versatile loft—designated as the third bedroom—offers flexibility as a bedroom, home office, or study. The inviting living room features a cozy fireplace, creating a warm and welcoming atmosphere. The beautifully updated kitchen boasts brand-new cabinetry, solid quartz countertops, a stainless-steel sink, and stainless-steel appliances. Fresh paint and new flooring throughout give the home a modern, move-in-ready feel. Additional highlights include a 2-car garage with direct interior access. Residents enjoy access to the community pool, spa, and amenities, all just a short walk away. Ideally located near scenic parks, hiking trails, award-winning schools, top-rated dining, shopping, and entertainment, with convenient access to Orange County’s beautiful beaches and luxury coastal resorts.
Property Details
Price:
$825,000
MLS #:
PW26038318
Status:
Active
Beds:
3
Baths:
2
Type:
Condo
Subtype:
Condominium
Subdivision:
Villas South VS
Neighborhood:
avalisoviejo
Listed Date:
Feb 20, 2026
Finished Sq Ft:
1,375
Lot Size:
663,992 sqft / 15.24 acres (approx)
Year Built:
1989
Schools
School District:
Capistrano Unified
Interior
Appliances
DW, GD, MW, GO, GR, GWH, VEF
Bathrooms
2 Full Bathrooms
Cooling
CA, ELC
Flooring
VINY, CARP
Heating
GAS, CF
Interior Features
CF, _2STR, HCEL, QTZC
Laundry Features
IG
Levels
C
Main Level Bathrooms
2
Main Level Bedrooms
2
Exterior
Architectural Style
MED
Attached Garage YN
1
Common Walls
_2CW
Community Features
SDW
Construction Materials
STC
Exterior Features
RG
Fencing
NO
Garage Spaces
2
Parking Spots
2
Parking Total
2
Patio And Porch Features
DK
Roof
CON
Spa Features
AS
View
HI, PK
Window Features
DPW
Financial
HOA Fee
$473
HOA Fee 2
$133
HOA Fee 2 Frequency
QTR
HOA Fee Frequency
MO
Get Out There, A Simply Outgoing Approach to Life. James Outland Jr. is one of those rare people who simply has an outgoing approach to life. No matter the activity… from dune buggy riding to skydiving to motorcycling to riding the local Pismo Beach waves… James Outland Jr. approaches life with a “just get out there and do it” kind of attitude. A zest for Life. James’ zest for life is obviously apparent in his many exciting hobbies. In his spare time, he loves riding dune buggies or hi…
More About JamesMortgage Calculator
Map
Current real estate data for Condo in Aliso Viejo as of Apr 11, 2026
43
Condo Listed
30
Avg DOM
687
Avg $ / SqFt
$787,095
Avg List Price
Community
- Address169 Sandcastle Aliso Viejo CA
- SubdivisionVillas South (VS)
- CityAliso Viejo
- CountyOrange
- Zip Code92656
Similar Listings Nearby
Property Summary
- Located in the Villas South (VS) subdivision, 169 Sandcastle Aliso Viejo CA is a Condo for sale in Aliso Viejo, CA, 92656. It is listed for $825,000 and features 3 beds, 2 baths, and has approximately 1,375 square feet of living space, and was originally constructed in 1989. The current price per square foot is $600. The average price per square foot for Condo listings in Aliso Viejo is $687. The average listing price for Condo in Aliso Viejo is $787,095. To schedule a showing of MLS#pw26038318 at 169 Sandcastle in Aliso Viejo, CA, contact your James Outland agent at 8057482262.
Courtesy of SR White and Associates. Disclaimer: All data relating to real estate for sale on this page comes from the Broker Reciprocity (BR) of the California Regional Multiple Listing Service. Detailed information about real estate listings held by brokerage firms other than James Outland include the name of the listing broker. Neither the listing company nor James Outland shall be responsible for any typographical errors, misinformation, misprints and shall be held totally harmless. The Broker providing this data believes it to be correct, but advises interested parties to confirm any item before relying on it in a purchase decision. Copyright 2026. California Regional Multiple Listing Service. All rights reserved. 169 Sandcastle
Aliso Viejo, CA

































