$599,000
32371 Middle Ridge RD
Albion, CA, 95410
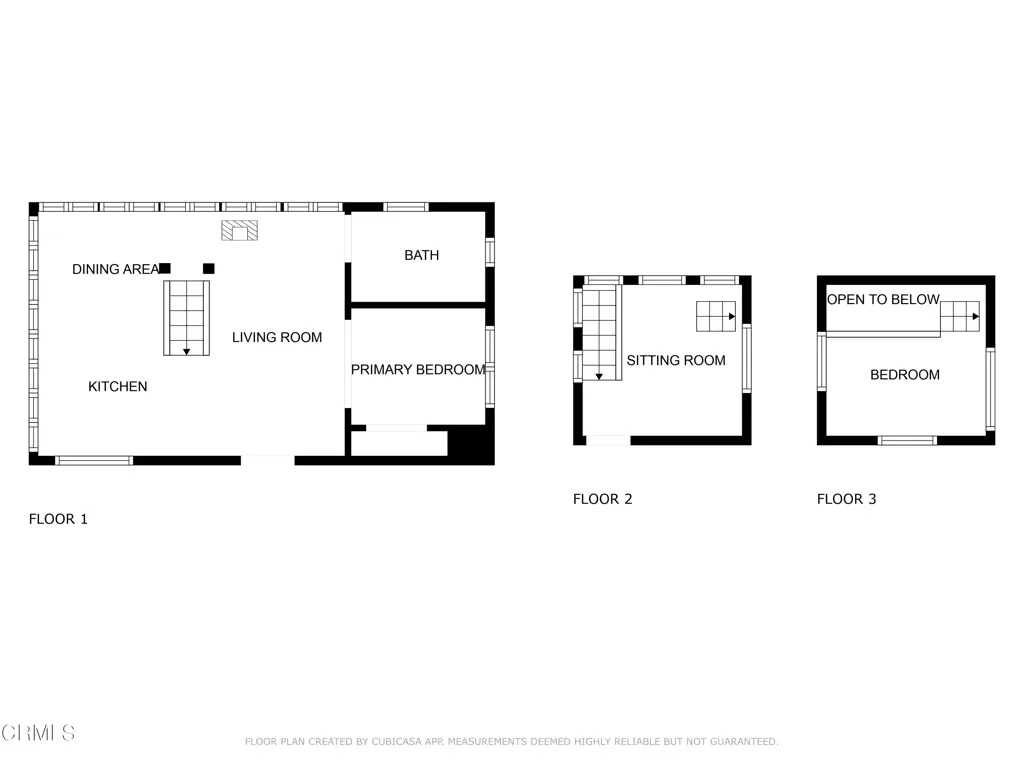
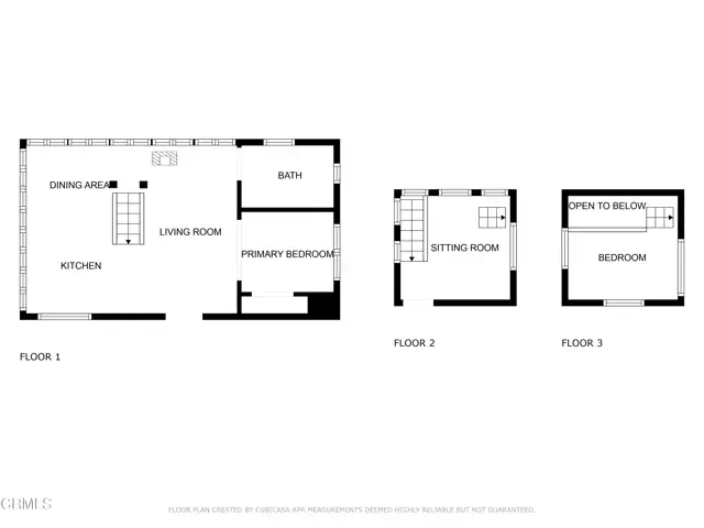
The Water Tower Farm – A Storybook Setting on 4 Acres of Country QuietA blend of redwoods and open meadows, this unique property offers a peaceful retreat with a touch of magic. The four-acre parcel provides generous space for gardens, fruit trees, or a few farm animals. During the rainy season, a vernal pond appears, attracting birds and wildlife and adding to the land’s natural charm. The setting feels secluded and serene. At night, the stars shine brightly in the clear country sky, and the air remains cool and fresh, thanks to the nearby ocean.The main home of 1140 sf, features architecturally unique, swooping lines, along with two bedrooms and one bathroom. Warm wood accents throughout make the space feel both comfortable and inviting. Nearby, the picturesque water tower house offers a delightful surprise and an additional 455+sf of living space. On the main level, there is a sitting area, kitchenette, bathroom, and sleeping alcove. The next level includes a flexible space that could serve as a bedroom, studio, or reading room. Above that, a ladder leads to a lofted bed area tucked beneath the rafters.The land is level and accessible, ready for your vision to take shape. If you are seeking a small homestead, a weekend escape, or a home that feels like it stepped out of a storybook, this property welcomes your imagination.
Property Details
Price:
$599,000
MLS #:
C1-11026
Status:
Active
Beds:
3
Baths:
2
Type:
Single Family
Subtype:
Single Family Residence
Neighborhood:
mdamendocinoalbion
Listed Date:
May 21, 2025
Finished Sq Ft:
1,605
Lot Size:
174,240 sqft / 4.00 acres (approx)
Year Built:
1974
Schools
Interior
Bathrooms
2 Full Bathrooms
Cooling
NO
Flooring
TILE, WOOD
Heating
PRO, CF
Laundry Features
OUT
Levels
A
Exterior
Common Walls
NCW
Community Features
RUR
Fencing
PTL, WIRE
Patio And Porch Features
NO
Spa Features
NO
View
NO
Financial
Get Out There, A Simply Outgoing Approach to Life. James Outland Jr. is one of those rare people who simply has an outgoing approach to life. No matter the activity… from dune buggy riding to skydiving to motorcycling to riding the local Pismo Beach waves… James Outland Jr. approaches life with a “just get out there and do it” kind of attitude. A zest for Life. James’ zest for life is obviously apparent in his many exciting hobbies. In his spare time, he loves riding dune buggies or hi…
More About JamesMortgage Calculator
Map
Current real estate data for Single Family in Albion as of Apr 11, 2026
7
Single Family Listed
183
Avg DOM
452
Avg $ / SqFt
$838,143
Avg List Price
Community
- Address32371 Middle Ridge RD Albion CA
- CityAlbion
- CountyMendocino
- Zip Code95410
Similar Listings Nearby
Property Summary
- 32371 Middle Ridge RD Albion CA is a Single Family for sale in Albion, CA, 95410. It is listed for $599,000 and features 3 beds, 2 baths, and has approximately 1,605 square feet of living space, and was originally constructed in 1974. The current price per square foot is $373. The average price per square foot for Single Family listings in Albion is $452. The average listing price for Single Family in Albion is $838,143. To schedule a showing of MLS#c1-11026 at 32371 Middle Ridge RD in Albion, CA, contact your James Outland agent at 8057482262.
Courtesy of Century 21 Seascape Realty. Disclaimer: All data relating to real estate for sale on this page comes from the Broker Reciprocity (BR) of the California Regional Multiple Listing Service. Detailed information about real estate listings held by brokerage firms other than James Outland include the name of the listing broker. Neither the listing company nor James Outland shall be responsible for any typographical errors, misinformation, misprints and shall be held totally harmless. The Broker providing this data believes it to be correct, but advises interested parties to confirm any item before relying on it in a purchase decision. Copyright 2026. California Regional Multiple Listing Service. All rights reserved. 32371 Middle Ridge RD
Albion, CA















































