$2,800,000
Cactus RD Lot 1
Adelanto, CA, 92301
Prime Commercial Development Opportunity – Corner of Highway 395 & Cactus Road
Motivated sellers – let’s sell this lot! An exceptional investment opportunity awaits with 4.16 acres (5 subdivided parcels) of vacant land in a prime corner location at Highway 395, Cactus Road, and Caliente Road in Adelanto.
Highlights:
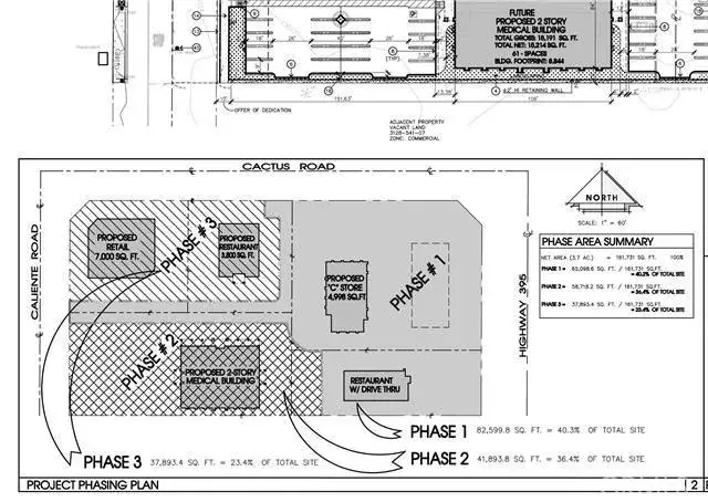
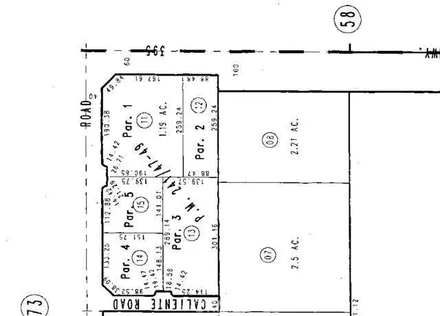
5 Parcels (APNs: 3128-541-11, 12, 13, 04, 16) – flexibility for phased development and resale.
Zoned C with all plans and permits approved by the City of Adelanto.
Approved uses include:
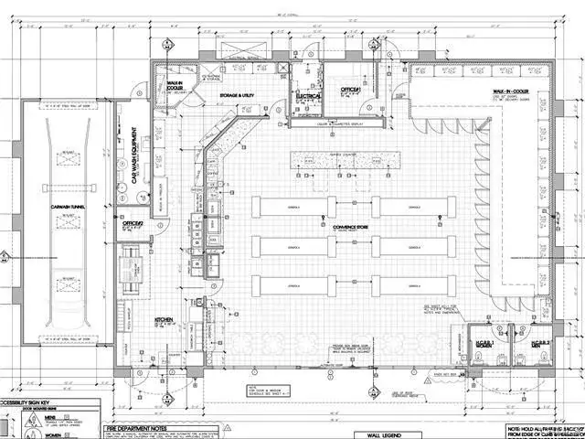
Shell Gas Station with C-Store
Drive-Thru Restaurant
2-Story Medical Plaza
Restaurant
7,000 sq. ft. Retail Store
High-Visibility Corner Lot!
Prime commercial parcel located at the signalized intersection of Highway 395 and Cactus Road in Adelanto. This property offers excellent exposure with an estimated 30,000 vehicles per day along Highway 395, making it ideal for retail, service, or mixed-use development.
The surrounding area is experiencing steady growth, with a population of approximately 38,000 residents in Adelanto (ZIP 92301) and projected to increase by 12% by 2025. The community has a median age of 28 years, a median household income around $68,400, and a diverse demographic base, providing strong support for new businesses.
Nearby residential neighborhoods and commercial developments further enhance the site’s accessibility and visibility.
Don’t miss this opportunity to invest in a rapidly growing corridor with excellent traffic exposure and strong local demand!
Motivated sellers – let’s sell this lot! An exceptional investment opportunity awaits with 4.16 acres (5 subdivided parcels) of vacant land in a prime corner location at Highway 395, Cactus Road, and Caliente Road in Adelanto.
Highlights:
5 Parcels (APNs: 3128-541-11, 12, 13, 04, 16) – flexibility for phased development and resale.
Zoned C with all plans and permits approved by the City of Adelanto.
Approved uses include:
Shell Gas Station with C-Store
Drive-Thru Restaurant
2-Story Medical Plaza
Restaurant
7,000 sq. ft. Retail Store
High-Visibility Corner Lot!
Prime commercial parcel located at the signalized intersection of Highway 395 and Cactus Road in Adelanto. This property offers excellent exposure with an estimated 30,000 vehicles per day along Highway 395, making it ideal for retail, service, or mixed-use development.
The surrounding area is experiencing steady growth, with a population of approximately 38,000 residents in Adelanto (ZIP 92301) and projected to increase by 12% by 2025. The community has a median age of 28 years, a median household income around $68,400, and a diverse demographic base, providing strong support for new businesses.
Nearby residential neighborhoods and commercial developments further enhance the site’s accessibility and visibility.
Don’t miss this opportunity to invest in a rapidly growing corridor with excellent traffic exposure and strong local demand!
Property Details
Price:
$2,800,000
MLS #:
PW25189195
Status:
Active
Beds:
0
Baths:
0
Type:
Land
Neighborhood:
adladelanto
Listed Date:
Aug 21, 2025
Lot Size:
181,210 sqft / 4.16 acres (approx)
Schools
Interior
Exterior
Community Features
VLY
View
NO
Financial
Get Out There, A Simply Outgoing Approach to Life. James Outland Jr. is one of those rare people who simply has an outgoing approach to life. No matter the activity… from dune buggy riding to skydiving to motorcycling to riding the local Pismo Beach waves… James Outland Jr. approaches life with a “just get out there and do it” kind of attitude. A zest for Life. James’ zest for life is obviously apparent in his many exciting hobbies. In his spare time, he loves riding dune buggies or hi…
More About JamesMortgage Calculator
Map
Community
- AddressCactus RD Lot 1 Adelanto CA
- CityAdelanto
- CountySan Bernardino
- Zip Code92301
Similar Listings Nearby
Property Summary
- Cactus RD Lot 1 Adelanto CA is a Land for sale in Adelanto, CA, 92301. It is listed for $2,800,000 and features 4 acres. To schedule a showing of MLS#pw25189195 at Cactus RD Lot 1 in Adelanto, CA, contact your James Outland agent at 8057482262.
Courtesy of Coldwell Banker Home Source. Disclaimer: All data relating to real estate for sale on this page comes from the Broker Reciprocity (BR) of the California Regional Multiple Listing Service. Detailed information about real estate listings held by brokerage firms other than James Outland include the name of the listing broker. Neither the listing company nor James Outland shall be responsible for any typographical errors, misinformation, misprints and shall be held totally harmless. The Broker providing this data believes it to be correct, but advises interested parties to confirm any item before relying on it in a purchase decision. Copyright 2026. California Regional Multiple Listing Service. All rights reserved. Cactus RD Lot 1
Adelanto, CA




















